


灰庫布袋除塵器的啟、停操作在除灰控制系統PLC的LCD上完成遠方操作,并在LCD上顯示啟、停運行狀態。灰庫頂部袋式除塵器故障報警信號(差壓過高、差壓過低等)進入除灰控制系統PLC。
服務電話:13091153069(同微信)
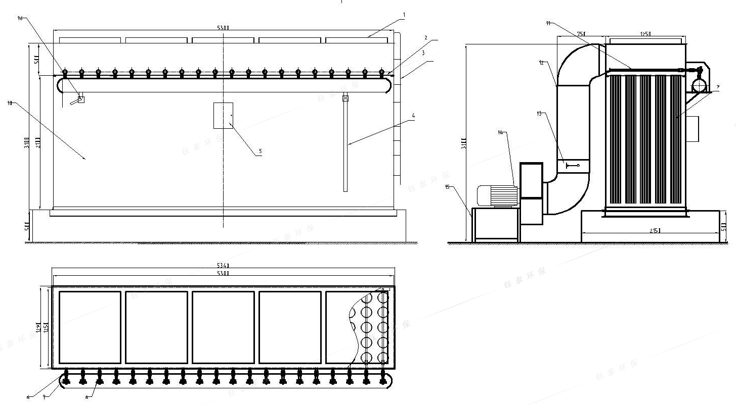
內蒙古蒙東能源某電廠灰庫頂部原有MC-120布袋除塵器(每座灰庫各1臺),原除塵器設計過濾面積為120㎡,由于低省輸灰系統及超低排放后電除塵輸灰頻率的增加,導致目前灰庫進氣量增了50%,現布袋除塵器的過濾面積已經不滿足灰庫的進氣量,需對布袋除塵器改造到過濾面積為240㎡的除塵器。改造后的布袋除塵器的啟、停操作在除灰控制系統PLC的LCD上完成遠方操作,并在LCD上顯示啟、停運行狀態。灰庫頂部袋式除塵器故障報警信號(差壓過高、差壓過低等)進入除灰控制系統PLC。
灰庫布袋除塵器改造實施計劃,為每臺除塵器增設通風煙道至地面與落地的抽塵風機連接,并在煙道設置手動調風閥ф460mm、更換落地抽塵風機3臺,檢修平臺3套、更換上箱體花板、安裝褶皺濾袋、噴吹管、脈沖控制儀、氣源壓力低值報警裝置、控制系統、真空釋放閥3臺,逆止閥3臺。
改造后,灰庫的每單臺庫頂布袋除塵器技術參數:處理風量17000m3/h、過濾風速1.0m/min、過濾面積240m2,濾袋耐溫135℃、抽塵風機出口含塵濃度≤10mg/Nm3。除塵器外型尺寸為原除塵器外殼尺寸:5.3×1.25×3.1m(高)
